Tvärsnitt- och fasadplaner
Det har aldrig varit enklare att skapa tvärsnitts- och fasadplaner med Cedreo. Minska ritningstiden och öka effektiviteten.
Kom igång snabbt
Cedreo är lätt att använda och erbjuder ett intuitivt gränssnitt för att rita så snabbt som möjligt.
Bättre organisation
Alla dina planer lagras på ett ställe för ökad effektivitet.
Underlätta samarbetet för dina team
Ritningar från din katalog kan delas mellan försäljnings- och designteam.
Skapa tvärsnitts- och fasadplaner
- Skärplaner med ett knapptryck: skapa ett snitt direkt på din plan och förhandsgranska resultaten samtidigt.
- Fasadplaner är barnlek: höjder detekteras automatiskt. Välj och anpassa enkelt den lämpliga vyn.
- En plan, många användningsområden: lägg till olika typer av information och skapa flera versioner av samma plan.
Planer så detaljerade som du vill
- Lägg till dimensioner: visa vertikala höjdmått från den naturliga terrängen till önskat element på planen med ett klick.
- Anteckna dina planer: lägg till så många kommentarer du vill och markera dem med pilar.
- Välj vilka element som ska visas: välj att visa produkter från 3D-biblioteket (skorstenar, träd, belysningsarmaturer, etc.) på dina planer.


Skalritningar, nedladdningsbara när som helst
- Visa vyernas namn: när du har namngivit vyn kan den automatiskt visas på planen.
- Definiera det mest lämpliga formatet: välj format, orientering och den mest lämpliga skalan för din plan innan du laddar ner.
- Optimal utskriftskvalitet: dina planer kan laddas ner i 300 dpi.
En vy för alla dina planer
- Se allt på en gång: få en översikt över alla planer för ett enskilt projekt.
- Lägg till en plan med ett klick: lägg till en våningsplan, skapa en ny vy eller skapa flera versioner av samma plan.

Rita snabbare med dessa funktioner
Skapa tvärsnitts- och fasadplaner med enkla funktioner och automatiserade uppgifter så att dina team kan minska den tid som krävs för ritning.

Intuitiva skärinställningar
Flytta skärlinjen direkt på din plan och bekräfta för att automatiskt skapa en tvärsnittsplan.

Automatisk detektering av höjder
Välj enkelt den önskade höjden på din plan och anpassa inramningen för din vy.

Anteckningar
Lägg till detaljerade anteckningar på dina planer och komplettera med pilar för tydligare markeringar.

Dimensioner
Förbättra din plan genom att lägga till höjdmått från naturlig terräng eller fria dimensioner.

Samtidig förhandsgranskning
Förbered dina tvärsnitts- och fasadplaner genom att se det slutliga resultatet i realtid.

Automatiska uppdateringar
Ändringar som görs i ditt projekt uppdateras automatiskt i dina tvärsnitts- och fasadplaner.
Kombinera funktioner
Cedreo erbjuder mycket mer än bara tvärsnitts- och fasadplaner. Upptäck vad mer du kan göra.

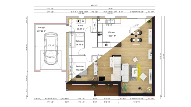
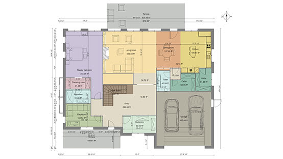
Planritningar
Skapa fullständiga och exakta planritningar för dina bygg- eller renoveringsprojekt.
Läs mer
Tomtplaner
Modellera naturlig och färdig terräng på mindre än 20 minuter.

Ytmätningar
Generera automatiskt Ytmätningar för dina projekt.

Plankatalog
Dela planer mellan teammedlemmar för ett mer effektivt samarbete.
Vanliga frågor
Hur många tvärsnitts- och fasadplaner kan jag skapa med Cedreo?
För ett enskilt projekt kan du skapa så många tvärsnitts- och fasadplaner som du vill.
Kan jag skapa flera versioner av samma plan?
Ja, du kan skapa flera versioner av en fasadplan för samma projekt. Till exempel kan en version vara försett med anteckningar och dimensioner, medan en annan kan visa den grafiska vyn utan anteckningar.
Vilka element visas på Cedreo fasadplaner?
Alla element som krävs för fasadplanen enligt bygglovsdokumenten kan visas:
- Mått och anteckningar
- Tak och solpaneler
- Dörrar och fönster
- Arkitektoniska element som är specifika för byggnaden såsom skorstenar, lister, räcken, etc.
- Fasadbeklädnad
- Vissa element som du kanske vill eller inte vill visa: träd, ljus, etc.
Kan jag skriva ut mina planer i stort format?
Cedreo låter dig välja upplösning – och därmed kvalitetsnivå – när du laddar ner dina planer.
- 72 dpi: rekommenderas för digital användning, optimerad för att visa hela planen.
- 300 dpi: rekommenderas för utskrift, perfekt om du behöver zooma in på planen.

