Einfach zu bedienender Grundrissplaner
Erstellen Sie professionelle Grundrisse in wenigen Minuten.
Haus Grundriss erstellen – in Stunden, nicht in Tagen
Cedreo ist ein kompletter Grundrissplaner, mit dem Sie ganze Häuser und ihre einzelnen Stockwerke entwerfen können. Sie können schnell Obergeschosse und Untergeschosse hinzufügen, indem Sie alle Außenwände duplizieren, um eine vollständige Kohäsion zu gewährleisten.


Fangen Sie von Null an oder passen Sie bereits vorhandene Projekte an
Cedreos Funktion zum Zeichnen von durchgehenden Wänden ermöglicht es dem Benutzer, Räume schnell zu skizzieren und Innenräume abzugrenzen. Ecken und Winkel können mit einem einfachen Klick hinzugefügt werden, so dass Sie sich die Mühe ersparen, Wandabschnitte manuell anzupassen. Wählen Sie Fenster und Türen aus unserer Bibliothek aus und fügen Sie nützliche Symbole hinzu, um einen darstellbaren Grundriss zu erstellen.
Wenn Sie schneller arbeiten müssen, können Sie mit dem Grundrissplaner vorhandene Grundrisse einfach kopieren und an die Anforderungen eines neuen Projekts anpassen. Diese Funktion ist besonders wertvoll für Bauherren mit einer Vielzahl von Bauprojekten.
Mehr über Grundriss zeichnen erfahrenEinfache 2D- und 3D-Grundrisse
Sparen Sie Zeit: erstellen Sie darstellbare Grundrisse und fügen Sie Grundriss-Symbole mit der Cedreo-Bibliothek hinzu. Dieses Online-Tool wurde für Immobilienmakler, Bauherren, Handelsvertreter und Innenarchitekten entwickelt, die qualitativ hochwertige Grundrisse für ihre Wohnprojekte zeichnen möchten.
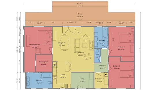
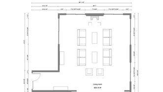
Einfache 2D Grundrissentwürfe
Erhalten Sie eine übersichtliche Draufsicht vom Innenbereich, mit vollständiger Bemaßung, Flächenberechnung, und Symbolen für Gegenstände und Möbel sowie Türen und Fenster. Ändern Sie die Vorlagen, exportieren und teilen Sie die fertigen Bilder und drucken Sie einen bemaßter Grundriss. Mit diesem Hausplaner erhalten Sie Ihre Entwürfe in jedem gewünschten Format.

3D Grundrisse erstellen & visualisieren
Erwecken Sie Ihre Grundrisse mit automatischen 3D-Ansichten zum Leben, die Details wie Verkehrsfluss, Türen, Fenster, Bodenbeläge, Wandfarben, Möbel, Dekoration und mehr zeigen. Wenn Sie einen 3D-Grundriss von oben betrachten, können Sie Ihren Kunden zeigen, wie die einzelnen Räume miteinander verbunden sind und wie die Möbel in den Raum passen werden.

Verwandeln Sie Ihre Grundrisse in 3D-Renderings
Erstellen Sie fotorealistische Objekte, die detaillierte Einblicke und ein Gefühl für den Maßstab vermitteln. Der gesamte Raum wird durch Cedreos hochwertiges Rendering und die umfangreiche Bibliothek von 3D-Möbeln und Einrichtungsgegenständen für alle Arten von Designs zum Leben erweckt. Der Online-Grundrissplaner ermöglicht es sogar, lebensechte Materialien hinzuzufügen, die die authentische Darstellung jedes Raumes verbessern.

Wie ein Grundrissplaner Ihrem Unternehmen helfen kann
Das Grundrissprogramm von Cedreo wurde speziell für Fachleute wie Immobilienmakler, Fertighaus- & Massivhaus Hersteller, Renovierung und Innenarchitekten entwickelt, um darstellbare und detaillierte Grundrisse mit Leichtigkeit selbst zu erstellen.
Fertig- & Massivhaus Hersteller
Bauherren, das Cedreo Grundrissprogramm nutzen, können schnell durch die Entwurf- und Planungsphase gehen und 2D- und 3D-Grundrisse erstellen, die es den Kunden ermöglichen, den Raum zu visualisieren und Verkaufsabschlüsse doppelt so schnell zu tätigen.
Mehr über Hausbau Software erfahrenHeartwood Build & Design, Hausbaufirma
„Wir können fast alles planen. Das ist der Grund, warum wir uns für Cedreo entschieden haben. Der Einsatz der 3D-Renderings hilft ganz sicher beim Verkauf des Projekts.“
Sheree Ramm, Mitbegründerin
Immobilienmakler
Immobilienmakler importieren alte, nicht darstellbare Grundrisse in Cedreo und zeichnen selbst einen hochwertigen 2D-Grundriss in weniger als einer Stunde. Auf diese Weise senken sie ihre Kosten mit den Architekten, beschleunigen die Vermarktung ihrer Immobilien und helfen ihren Kunden, sich mit 3D-Grundrissen ein Bild zu machen. So können sie ihre Exposé Immobilien selbst vervollständigen.
Mehr über Umbau Software erfahrenLoft One Contracting, Hausumbaufirma
„Die Möglichkeit, dies intern zu tun, verkürzt die Zeit, die für die Präsentation von Entwürfen benötigt wird. Und natürlich ist es auch billiger. Für uns war es ein großer Gewinn, Cedreo zu finden.“
Rob Zerrenner, CEO
Immobilienmakler
Immobilienmakler importieren alte, nicht darstellbare Grundrisse in Cedreo und zeichnen selbst einen hochwertigen 2D-Grundriss in weniger als einer Stunde. Auf diese Weise senken sie ihre Kosten mit den Architekten, beschleunigen die Vermarktung ihrer Immobilien und helfen ihren Kunden, sich mit 3D-Grundrissen ein Bild zu machen. So können sie ihre Exposé Immobilien selbst vervollständigen.
Mehr über 3D Grundrisse für Exposés erfahrenSixpence 21, Interior Design Firma
„Mit Sketchup kann man einen Bleistifteffekt erzielen, während Cedreo fotorealistisch ist, und das ist es, was meine Kunden sehen wollen.“
Frankie Sharman, Inhaberin
Grundriss Beispiele
Entwerfen Sie Grundrisse für jeden Raumtyp mit dieser vielseitigen 3D Hausplaner Software.

Kellergeschoss

Wohnung

Gewerbich
Grundrissplanung Funktionen, die die Entwurfszeit um 50 % reduzieren können
Cedreo gibt Ihnen die Tools an die Hand, mit denen Sie schnell und ohne spezielle CAD- oder 3D-Kenntnisse Grundrisse erstellen können. Mit einer fast vollständigen Lernkurve und dem Zugang zu Video-Tutorials und Support werden Sie schnell in der Lage sein, Cedreo zu nutzen, um Ihre Planungsphase zu beschleunigen und beeindruckende 3D-Visualisierungen zu erstellen.

Grundrisse importieren & duplizieren
Importieren Sie bestehende Grundrisse direkt in den Grundrissplaner und zeichnen Sie dann neue Geschosse über den importierten Plan. Anschließend können Sie Ihren Entwurf einfach kopieren, um Vorlagen zu erstellen und nach Bedarf zu bearbeiten.

Wände intuitiv zeichnen & Größe mühelos anpassen
Klicken und ziehen Sie, um Wände oder Trennwände kontinuierlich zu zeichnen und zu erweitern. Fügen Sie Ecken und Winkel mit einem einfachen Linksklick ein. Klicken Sie dann auf Wände und verschieben Sie sie horizontal oder vertikal, um das Projekt zu vergrößern oder zu verkleinern.

In 2D zeichnen & in 3D visualisiere
Sehen Sie ein lebensechtes Modell Ihres Entwurfes, während Sie in 2D zeichnen. Nebeneinander angeordnete Fensteransichten sorgen für Klarheit während der Entwurfsphase.

2D Grundrisse personalisieren
Fügen Sie Symbole hinzu, nutzen Sie Farbkodierung und Beschriftungen für Wand- und Raumtypen, um Ihren Grundriss zu personalisieren.

Wählen Sie Fenster & Türen aus über 1.300 Produkten
Wählen Sie Fenster und Türen, die zu Funktion, Größe und Stil des jeweiligen Raums passen.

Flächenberechnung & maßstabsgetreue Grundrisse
Wählen Sie den Maßstab, den Sie für die Darstellung Ihres Grundrisses benötigen, und laden Sie ihn als PDF-Datei zum Drucken herunter. Raumbereiche und vollständige Designbereiche werden automatisch aktualisiert, wenn Sie Ihre Grundrisse ändern.
Grundriss Online erstellen
Mit Cedreo ist es einfach, 2D- und 3D-Grundrisse zu erstellen. Jeder Schritt des Grundrissprogramms ist darauf ausgelegt, Ihren Arbeitsablauf zu beschleunigen. Die Grundrissplanung wird zu einem nahtlosen Prozess, vom Entwurf bis zur Kundenpräsentation.
1. Zeichnen Sie den Grundriss
Sobald Sie auf „Los geht’s“ geklickt und sich angemeldet haben, können Sie einen neuen Online-Grundrissplan erstellen. Verwenden Sie eine vorhandene Vorlage, importieren Sie einen neuen Grundriss bzw. zeichnen Sie von Null an.
Klicken und ziehen Sie, um Wände zu zeichnen und zu erweitern, passen Sie den Maßstab Ihres Grundrisses intuitiv an. Wählen Sie Türen und Fenster aus der Bibliothek aus und passen Sie die Größe bei Bedarf einfach an. Ergänzen Sie jeden Raum mit Elementen aus der umfangreichen Symbolbibliothek.

2. Symbole und Farbkodierung einfügen
Im Schritt „Grundriss“ können Sie auf unsere Grundriss-Symbolbibliothek zugreifen, um die Platzierung wichtiger Funktionen anzuzeigen. Die Bibliothek umfasst mehr als 400 Symbole, von den wichtigsten Möbelstücken bis hin zu technischen Symbolen wie Waschmaschinen- und Trockneranschlüssen und Steckdosen. In dieser Etappe können Sie auch Räume und Bereiche farblich kennzeichnen, um sie mit einem Blick zu identifizieren.

3. Fügen Sie das Dach hinzu
Fügen Sie das angepasste Dach schnell und einfach hinzu: Pultdach, Satteldach oder ein Walmdach. Ein Dach kann ebenfalls manuell gezeichnet werden, damit Sie die gewünschten Abschnitte direkt auf Ihrem Grundriss zeichnen.
Wählen Sie Ihren Dachtyp und fügen Sie ihn einfach in den Grundriss ein. Mit nur wenigen Klicks können Sie die Einstellungen für Höhe, Winkel, Neigung und Überstände anpassen.

4. Gleichzeitig in 3D visualisieren
Erhalten Sie eine gleichzeitige 3D-Ansicht Ihres Projekts, während Sie in 2D zeichnen.
Die Server von Cedreo bieten eine starke Online-Verarbeitungsleistung, so dass Ihre Desktop-Systeme nicht zusätzlich belastet werden müssen. Sie sehen Änderungen in Echtzeit und können so leichter Entscheidungen treffen und intuitiver gestalten.

5. Einrichten und dekorieren
Über 7.000 anpassbare 3D-Möbel, -Objekte und -Materialien sind in der umfangreichen Bibliothek zu finden.
Der Grundrissplaner gibt Ihnen die Flexibilität, die Sie brauchen, um die Inneneinrichtung realistisch zu erfassen und Ihre Kunden mit Designmodellen zu beeindrucken, die ihren persönlichen Geschmack treffen.

6. Fotorealistische Grundriss-Visualisierung erstellen
Eine naturgetreue Visualisierung Ihres Grundrisses kann der Schlüssel zur Akzeptanz durch den Kunden sein. Nachdem Sie Ihren Entwurf sorgfältig zusammengestellt und mit Dekoration gefüllt haben, wählen Sie einfach die Ansichten aus, die Sie in einem realistischen 3D-Rendering darstellen möchten, und speichern Sie sie. Ändern Sie die Position der Sonne, um verschiedene Lichteffekte zu erzielen. Anschließend können Sie die gewünschte Auflösung auswählen und zur Bearbeitung übermitteln. Unsere Server werden das Rendering in weniger als 5 Minuten für Sie erstellen.

7. Herunterladen und/oder mit Ihrem Team teilen
Alle Renderings eines bestimmten Grundrisses können in einer Projektgalerie gespeichert werden, auf die Sie und – wenn Sie die Unternehmen-Version haben – allen anderen Teammitglieder Zugriff haben. Die Renderings können direkt von dort heruntergeladen werden. Es ist auch möglich, Ihre 2D-Grundrisse aus Cedreo zu exportieren, entweder im JPG- oder im PDF-Format. Wenn Sie das PDF-Format wählen, können Sie die Pläne maßstabsgetreu ausdrucken.

Häufig gestellte Fragen
Muss ich das Programm herunterladen?
Nein — der einfache Grundrissplaner von Cedreo funktioniert 100% Online. Eine Internetverbindung und ein Laptop reichen aus, um die App zu nutzen. Die einzigen Dateien, die Sie herunterladen müssen, sind Ihre Grundrisse und Renderings, falls Sie sie drucken oder außerhalb Ihres Cedreo-Kontos speichern möchten.
Brauche ich CAD-Erfahrung, um Cedreo zu benutzen?
Keineswegs! Cedreo wurde so entwickelt, dass es einfach zu bedienen ist, so dass auch Designer ohne Software-Erfahrung schnell mit dem Programm arbeiten können. Eine intuitive Benutzeroberfläche macht den Zeichnen- und Modellierungsprozess reibungslos und einfach.
Bieten Sie Schulungen und Ressourcen an?
Ja! Alle Benutzer von Cedreo haben freien Zugang zu Schulungen und Support. Ein erfahrenes Team steht Ihnen jederzeit zur Verfügung, um Fragen zu beantworten und Sie durch die Funktionen des Programms zu führen. Einzelschulungen sind mit den Pro- und Unternehmens-Tarifen möglich. Cedreo unterhält auch eine umfangreiche Bibliothek von Video-Tutorials und fügt regelmäßig neue Videos hinzu.
Funktioniert Cedreo auf Mac und PC?
Da es sich bei Cedreo um ein Online-Programm handelt, ist der Zugriff über Mac oder PC, iOS- oder Android-Geräte problemlos möglich. Solange Ihr Gerät über einen Browser verfügt, mit dem Sie die Website aufrufen können, können Sie das Programm nutzen.









