Floor Plan Drawing
From quick floor plan drawing in 2D to client-ready 3D views, Cedreo helps you create house plans online in just a few hours.
How to Draw a Floor Plan with Cedreo
Whether you’re drawing a new house plan or updating an existing layout, Cedreo helps you create accurate floor plans. Start drawing a layout in 2D and watch it instantly get turned into 3D floor plans your clients can easily understand.
1. Import Plans & Draw Walls
Start with a clean base plan so every wall lines up and edits are easier later on.
- Import an existing plan in JPG, PNG, PDF, DWG, or DXF format so you don’t start from scratch.
- Trace the layout with smart magnetism so your lines stay clean and your corners stay square.
- Use continuous wall drawing to outline exterior and interior walls in just a few clicks.
- Dimensions are added and updated as you draw.
- Set wall types (like load-bearing or partition) so your home plan stays organized from the start.

2. Add Windows, Doors & Levels
Once the walls are in, add openings and levels so the layout works in real life.
- Resize the full layout with one-click resizing when you need to test layouts in a hurry.
- Drag and drop doors and windows into the walls, then fine-tune size, swing, and placement.
- Add stairs and build a basement or upper floors, duplicating complete levels to save time.
- Check spacing around key paths so every room has enough room for real-life use.

3. Label Rooms and Add Details
Finish the plan with clear labels and key details so clients and teams can read it fast.
- Apply room types and names so every room reads clearly in the overhead view.
- Add custom dimensions for clarity.
- Drop in furniture items to test furniture arrangements before a client signs off.
- Add elements like outlet symbols, plumbing fixtures, a compass rose, and simple notes so the plan stays easy to read.
- Bundle your plans into a presentation you can download and share for faster decisions.

Draw Floor Plans in 2D Fast
When you need precise floor plans that crews and clients can read at a glance, Cedreo helps you create clean 2D floor plans that stay easy to update.
- Fast drafting: Create detailed floor plans that are brand new or from floor plan templates without the typical CAD effort.
- Clear layout: Show walls, doors, windows, and labels in a simple scaled diagram that reads like a jobsite plan.
- Better communication: Add room names, fixtures, and other elements so homeowners, interior designers, and builders stay aligned.
- Easy exports: You can download plans in common formats like JPG or PDF for easy sharing.

3D Floor Plans to See Perspective & Flow
A 3D view helps clients feel the space, so you spend less time explaining and more time closing the deal.
- Furniture layout: Add furniture and decor items to confirm flow and prevent tight spots.
- Natural light checks: Explore how windows, openings, and room layout affect light and comfort.
- Faster decisions: Review different layouts with clients in one meeting, so choices stick.
- Material choices: Test flooring, paint colors, and realistic finish textures to quickly see how they work together.

Other Types of House Plan Drawings
Some projects need more than a house floor plan. Cedreo helps you cover the big picture with key details in a variety of plans.
- Site plans: Draw property boundaries, setbacks, driveways, and landscaping so the home plan fits the site.
- Electrical plans: Place outlets, switches, and lighting points with clear symbols that are easy to read.
- Cross sections: Create section views to explain heights, stairs, and vertical transitions.
- Elevations and roof plans: Generate elevation drawings and create roof plans so the outside matches the inside.

Top Floor Plan Drawing Features
Cedreo combines speed and control so professionals can create, revise, and present house plans with less effort.
Export Plans
Export 2D floor plans and 3D floor plans in common file formats so you can print them or share them with clients and contractors.
Surface Area Table
See tables showing livable, usable, floor, auxiliary, lot size, building footprint, and glazed area totals that automatically update as you modify your drawings.
Terrain Modeling
Use Cedreo’s terrain tools to model site slopes and design outdoor areas without complex manual drafting.
Roofs Drawn Automatically
Automatically generate accurate roof shapes based on your floor plan layout.
World-Class Support
Get up to speed quickly with tutorials, a knowledge base, and a responsive support team that helps your projects stay on track.
Easy to Learn
Work with a clean, intuitive drag-and-drop interface so you can draw floor plans and home designs without CAD experience.
Examples of Floor Plan Drawings Made with Cedreo
Here are example floor plan drawing projects you can create with Cedreo, from quick remodel layouts to full house plans and commercial spaces.

Container home 2D floor plan

3D Bathroom Floor Plan

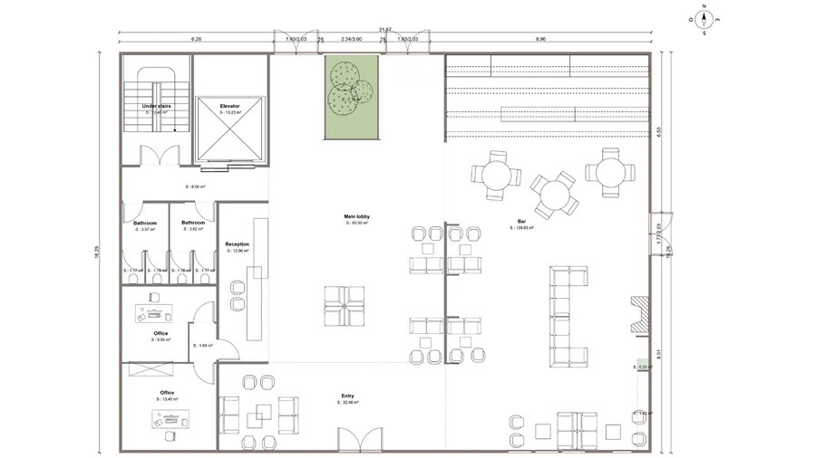
Hotel lobby 2D floor plan

3D floor plan of a kitchen

Cross section view

Elevation plan

Electrical plan

Commercial floor plan

Site plan
It’s easy to use.
But you can always count on Cedreo support.
For an even faster start, access tutorials and help articles.
Get tips to do more, faster.
“The ease of drawing the 2D layout plan was the main draw to this program. It was very intuitive compared to some other programs that were trialed.”
House Plan Drawing FAQs
Pick a tool that lets you draw, edit, and present without slowing down construction planning.
More pros are turning to a tool like Cedreo, since it’s ideal for builders, remodelers, and contractors who want a simple house design workflow.
A house design from scratch takes about two hours in Cedreo.
Once you build the base layout, updates to a room can take just minutes.
Not when you use floor plan drawing tools like Cedreo.
Cedreo’s intuitive toolset and a drag and drop editor make house design easier and faster than ever.
Yes. In Cedreo, you can import a house floor plan in formats like PNG, JPEG, PDF, DWG, or DXF and trace over it to speed up the design process.
Yes, you can create multi-level house plans with basements and upper floors in Cedreo (up to 6 levels, including the basement).
Choose doors and windows from the library, then drag and drop them into your walls.
Then adjust the size and customize their appearance as needed.
Yes, you can draw in 2D while viewing 3D at the same time.
This helps you spot issues before you build.
Yes, you can copy and save a finished home plan to use as a floor plan template for future projects.
Cedreo’s click and drag resizing tools makes it easy to adjust the entire space from project to project.