Floor Plan With Dimensions Creator
Create floor plans with dimensions in minutes, so you can land client buy-in faster and give your team accurate layouts they can trust.
How to Create Floor Plans with Dimensions
Even with zero CAD experience, here’s how Cedreo helps builders, remodelers, and designers create precise floor plans faster than ever.
Import & Draw
Start from a blank house floor plan or import an existing layout, then trace and adjust it until it matches desired specs.
- Import an existing plan in PDF, PNG, JPEG, DWG, or DXF formats.
- Use simple wall tools to draw exterior walls and interior partitions.
- Drop in doors and windows early, so clearances and traffic flow make sense right away.
- Add a basement or upper level with a single click to duplicate the adjacent level with the same footprint and measurements.

Resize & Adjust As Needed
Adjust the layout when the plan changes to explore different types of options.
- Use quick resize controls to adjust a room or the full floor plan when the footprint changes.
- Click and drag partition walls to resize rooms while keeping connected walls aligned.
- Click doors and windows to slide them along a wall while you see measurements update right away.
- Refer to surface area tables that update as you work to see the total square footage of living, finished, glazed, and other areas.

Customize & Download
Finish the floor plan with measurements and annotations that provide clarity.
- Show interior and exterior dimensions, wall thickness, and room names.
- Keep or remove automatic dimensions and add custom dimensions anywhere needed.
- Create clean annotations for special notes, like stair locations, built-ins, or new furniture clearances.
- Export your plans for sharing, printing, and adding to marketing materials.

2D House Floor Plans With Measurements
2D house plans let you see the full project across all levels and with the detailed info you need (dimensions, room labels, openings, notes, scale, and more).
- Symbols: Add clear floor plan symbols (doors, windows, stairs, and fixtures), so anyone can understand the plan faster.
- Surface area: See each room’s surface area directly on the floor plan, and watch it update automatically when you adjust walls or change the layout.
- Clean labeling: Room names, notes, compass rose, and dimension lines make the plan easy to read.
- Scalable output: Plans are ready to download and print to scale.

Detailed Site Plans
Site plans help you place the building correctly and communicate what happens outside the walls.
- Property boundaries: Show property boundaries and overall lot dimensions, so new house plans match the real site.
- Setbacks: Custom measurements help communicate building placement and key offsets.
- Terrain modeling: Create flat or sloped lots from imported plans and elevation points or lines, so the site plan reflects real grade changes.
- Outdoor layout: Add landscaping elements like fences, hedges, pathways, decks, and vegetation to support the full house design story.

Cross Sections & Elevations
Cross sections and elevations help clients and crews understand heights, slopes, and details that a floor plan alone can’t show.
- Quick views: Create cross sections and elevation drawings in one click when you need a fast check of the design.
- Vertical benchmarks: Display key elevation references tied to natural grade levels.
- Clear dimensions: Add manual dimensions where you need extra clarity, like ceiling heights, floor-to-floor heights, or stair runs.
- Building to boundary: Generate cross-sections of the entire site and add dimensions to verify the distance from the house to the property boundary.

Top Features of this Floor Plan With Dimension Tool
Cedreo combines speed and clarity, so you can create floor plans, review options, and move the project forward with less friction.
Switch Units Easily
Work in feet and inches or metric measurements, so your floor plan with dimensions matches your market and team.
Surface Area Tables
Get automatic room dimensions and surface area tables, so you can track square footage without manual math.
Resize in Two Clicks
Change project dimensions quickly across levels, so small revisions do not turn into a full redraw.
Before and After Options
Save multiple versions of house plans with dimensions, so you can compare choices and help clients decide.
World-Class Customer Support
Instead of generic contact forms and user forums, get fast help by chat, email, or phone, along with a knowledge base and tutorial videos.
Easy to Learn Tools
Use an intuitive interface built for busy housing professionals, so you can start creating professional architectural plans without a long ramp-up.
Examples of Floor Plans With Measurements
Cedreo supports different types of floor plans, from simple layouts to detailed house designs. Here are some examples of real house plans with measurements created in Cedreo.

House floor plan with dimensions

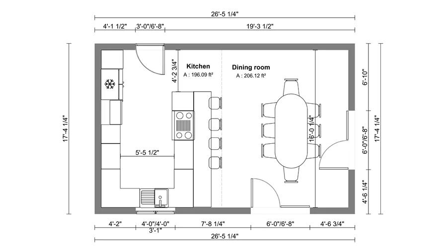
Kitchen floor plan with dimensions

Bathroom floor plan with dimensions

Modern living room floor plan with dimensions

1-bedroom apartment floor plan with dimensions

U-shaped kitchen floor plan with dimensions

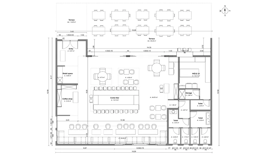
Restaurant floor plan with dimensions

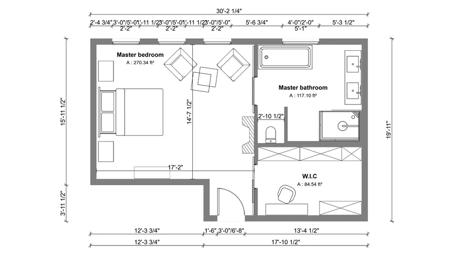
Master suite floor plan with dimensions

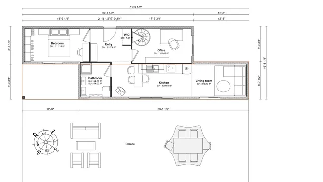
Container house floor plan with dimensions
It’s easy to use.
But you can always count on Cedreo support.
For an even faster start, access tutorials and help articles.
Get tips to do more, faster.
“The ease of drawing the 2D layout plan was the main draw to this program. It was very intuitive compared to some other programs that were trialed.”
FAQs
Choose a floor plan platform that measures as you draw, exports a print-to-scale blueprint, and lets you adjust the layout fast.
Cedreo is built for contractors, remodelers, and designers who want accurate house plans without the complexity of traditional CAD tools.
Start with the scale (and the direction arrow if it is shown), then read the exterior measurements to understand the overall house size and square feet.
Then go room by room and follow the inside dimensions, wall thickness, and door and window openings, so you can picture how you will walk through the layout and where furniture will fit to confirm enough space.
Cedreo automatically calculates and displays dimensions as you draw walls, so your sketch becomes a measured plan right away.
You can also drop specific dimension lines to clarify key positions, like tight clearances, and furniture zones.
Yes, Cedreo lets you switch between feet and inches or metric measurements at any time.
That keeps the process smooth when you share plans with partners, architects, or crews who work in different units.
With Cedreo, you can show interior and exterior dimensions, wall thickness, room sizes, door and window openings, and total square footage.
You can also mark site boundaries and key notes, so you can add furniture and fixtures, and confirm enough room before building.
Cedreo lets you export house plans with dimensions for sharing and printing in PDF format, as well as DXF.
Yes, dimensions update as you adjust walls, doors, windows, and layout elements.
That lets you explore options, keep the project direction on track, and stay focused on design instead of re-measuring.
Cedreo lets you make a variety of types of house plans, from new house plans, container house plans, open floor plan barndominiums, and 3D floor plans with furniture.
You can also create photorealistic 3D renderings that show accurate natural light and textures and help your client envision their dream space faster.