Le plan de masse est une pièce indispensable au dossier de permis de construire ou de déclaration préalable de travaux, qu’il s’agisse d’une construction neuve ou d’une rénovation.
La quantité d’éléments techniques qui doivent y figurer, ainsi que les règles locales du code de l’urbanisme qui peuvent s’appliquer, font du plan de masse une pièce complexe à réaliser.
Cedreo permet cependant aux constructeurs de maisons individuelles et aux professionnels de la construction et de la rénovation de créer un plan de masse simplement et intuitivement. La fonctionnalité plan de masse fait partie du module “Terrain” dans Cedreo.
Alors, comment faire un plan de masse en ligne simplement ? On vous dit tout ici, en 8 étapes clés, détaillées pas à pas.
Quels outils pour réaliser un plan de masse en ligne ?
Les différentes solutions disponibles
Pour réaliser un plan de masse, plusieurs options s’offrent aux constructeurs de maisons individuelles, maîtres d’œuvre et particuliers. Le choix dépend du niveau de précision recherché et de la finalité du projet.
- Les logiciels de dessin DAO/CAO : Des solutions comme AutoCAD ou SketchUp offrent une grande flexibilité, mais nécessitent une prise en main avancée et une bonne maîtrise des cotations et annotations réglementaires.
- Les plateformes gratuites : Idéales pour les particuliers souhaitant esquisser un plan, elles restent cependant limitées en termes de précision, d’export et de conformité administrative.
- Les logiciels dédiés à la conception de maisons : Conçus pour répondre aux exigences réglementaires, ils permettent de générer des plans de masse conformes, intégrant cotations altimétriques, annotations et formats adaptés aux dossiers de permis de construire.
Pourquoi utiliser un logiciel de conception de maisons pour dessiner un plan de masse ?
Dans le cadre d’une demande de permis de construire ou de déclaration préalable, le plan masse (DP2 ou PCMI2) doit respecter plusieurs critères : légende, échelle, annotations, cotes, servitudes…

Un logiciel spécialisé peut alors vous aider à :
- Gagner du temps en automatisant les tâches comme les cotations et l’ajout d’annotations.
- Garantir la conformité avec un plan structuré selon les normes exigées par les services d’urbanisme.
- Exporter les documents à la bonne échelle pour un dossier complet et valide.
Comment choisir le bon logiciel pour faire un plan de masse ?
Le choix du logiciel de plan de masse dépend avant tout des besoins et du niveau d’expertise de l’utilisateur. Pour les professionnels, un logiciel métier simple et intuitif vous aidera à produire des documents conformes et gérer efficacement vos projets de construction.

Les critères à prendre en compte pour faire son choix :
- Prise en main et intuitivité : L’interface doit permettre une utilisation rapide, sans nécessiter une formation longue.
- Fonctionnalités adaptées : Gestion des cotes, des annotations, de l’altimétrie, ajout des réseaux et aménagements extérieurs.
- Compatibilité avec les formats administratifs : Le logiciel doit permettre l’export aux échelles et formats demandés pour les dossiers de permis.
- Possibilité de travail en 2D et 3D : Un double affichage facilite la visualisation du projet sous tous ses angles.
Des solutions comme Cedreo répondent précisément aux attentes des professionnels, en proposant un logiciel tout-en-un spécialement conçu pour les constructeurs de maisons individuelles et les maîtres d’œuvre.
Guide étape par étape pour réaliser un plan de masse
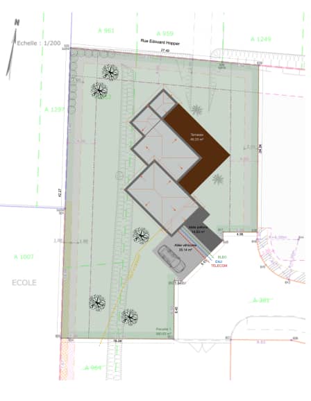
1 : Dessiner le terrain naturel et délimiter la parcelle
Une fois votre plan de cadastre ou plan de géomètre importé dans Cedreo, dessinez la parcelle concernée par le projet rapidement grâce à l’outil spécifique “Parcelle” du module Terrain disponible à partir du menu “Tracé” puis « Terrain naturel ». Vous pouvez ajouter des haies et des murets pour délimiter votre parcelle.

2 : Tracer les lignes de recul
Si certaines zones de votre foncier ne sont pas constructibles, ajoutez les lignes de recul. Le positionnement du bâti sur la parcelle en sera facilité.
3 : Ajouter des points ou lignes d’élévation au terrain
A partir du menu « Terrain naturel », avec les outils « points d’élévation » et « lignes d’élévation », représentez les différents niveaux d’élévation du projet.
Comment ajouter des points d’altimétrie ou des lignes d’élévation4 : Tracer et positionner le projet de construction sur le terrain
L’étape qui suit le dessin de la parcelle est le tracé de la maison et son positionnement sur le terrain. Un jeu d’enfant grâce aux outils du module terrain.
Comment implanter la maison sur le terrain5 : Ajouter les zones à déduire de la surface de pleine terre
Pour ajouter ou moduler des espaces fonctionnels sur votre plan de masse, l’utilisation des régions et allées est conseillée. Vous pourrez alors choisir si vous souhaitez déduire ces zones de la surface de pleine terre. Les régions vous permettent de définir les parkings, cours, zones de végétation, etc. Et les allées peuvent être des allées de voiture, des allées piétonnes ou encore des allées de forme libre.
Dessiner les régions dans Cedreo Dessiner les allées dans Cedreo6 : Gérer les retenues de terre
Cedreo inclut deux outils pour gérer les terrains en pente : le talutage et le mur de soutènement. Dans l’étape “Extérieur” ces outils sont disponibles par les menus “talutage” et “mur de soutènement”. Les murs de soutènement et les talutages se positionnent automatiquement sur les côtés sur lesquels vous cliquerez. Vous pourrez ensuite les personnaliser (type de mur, hauteur, épaisseur, modification du talutage point à point, etc.).
En savoir plus sur la gestion des retenues de terre7: Ajouter les annotations sur le plan de masse
Vous avez la possibilité d’ajouter librement du texte, des flèches ou des pointillés sur votre plan 2D.
Tout sur les annotations du plan dans Cedreo8: Obtenir un plan à l’échelle incluant le plan de masse
Depuis votre gestionnaire de projets vous pouvez imprimer vos plans selon l’échelle souhaitée sur le format de papier souhaité.

Faire un plan de masse et créer les documents nécessaires pour les demandes d’urbanisme
Un logiciel tout-en-un pour faciliter la réalisation d’un plan de masse en ligne

Avec Cedreo, la modélisation complète d’un terrain ne prend que 20 minutes grâce à une interface intuitive et fluide, spécialement conçue pour les constructeurs et les maîtres d’œuvre. Travaillez rapidement et efficacement, sans perdre de temps sur des manipulations complexes.
✔ Dessinez en 2D et visualisez automatiquement votre projet en 3D pour une compréhension immédiate (et inversement).
✔ Tracez facilement les limites de votre parcelle et de vos constructions grâce à des outils intuitifs.
✔ Modélisez l’ensemble du terrain en quelques clics : ajustez les pentes, ajoutez des murs de soutènement, des talutages et gérez les reliefs.
✔ Ajoutez automatiquement les cotations et annotations pour garantir une conformité parfaite aux réglementations en vigueur.
✔ Exportez vos documents aux échelles réglementaires sans risque d’erreur de dimensions lors de l’impression.
✔ Préparez et personnalisez vos DP et PCMI : intégrez votre plan de masse, ajoutez vos autres pièces graphiques (plan de situation, plan de façades …), votre logo, votre cartouche pour générer un dossier complet, structuré et conforme aux attentes des services d’urbanisme.
Générez tous vos documents graphiques en quelques clics

Au-delà des démarches administratives, Cedreo est un véritable outil de gestion et de communication pour vos projets. Il centralise toutes les pièces graphiques indispensables :
- Plan de masse coté avec toutes les informations réglementaires (côtes, légendes, orientations).
- Plans de niveaux en 2D avec annotations et dimensions, exportables à l’échelle souhaitée.
- Plans de coupe et élévations de façade conformes aux exigences des instructeurs.
- Visuels 3D photoréalistes pour une communication claire et impactante avec vos clients.
Grâce à Cedreo, vous produisez rapidement des documents professionnels adaptés aux demandes de permis de construire et de déclaration préalable, tout en offrant à vos clients une visualisation de leur futur projet.
Maintenant que vous avez balayé toutes les étapes pour découvrir comment faire un plan de masse en ligne dans Cedreo, c’est à vous de jouer !