Trop souvent, la phase d’avant-projet est réduite à un simple ensemble de plans provisoires. Une sorte « d’esquisse améliorée » en attente de signature d’un devis officiel.
Mais pour tout projet de construction, d’extension ou de rénovation, la phase d’avant-projet sommaire (APS) est en réalité stratégique pour vos ventes ! Un APS bien conçu, lisible, cohérent et convaincant peut faire toute la différence entre un projet qui avance et un dossier qui stagne, entre un prospect et un client !
Mais face à la pression constante des délais, à la diversité des demandes clients toujours plus exigeantes et aux impératifs de réactivité, comment produire rapidement un avant-projet sommaire à la fois professionnel et persuasif ? Et surtout, comment éviter les erreurs, les allers-retours et les pertes de temps qui amenuisent votre rentabilité ?
Dans cet article, découvrez des pistes pour répondre à ces enjeux, notamment à travers l’outil Cedreo qui propose une solution simple et concrète à toutes ces problématiques quotidiennes.
Points clés à retenir
- La qualité d’un APS donne une dynamique décisive au projet dès le départ. Le professionnalisme qui se dégage d’un dossier d’avant-projet déclenche l’adhésion et fait basculer le prospect vers l’engagement.
- Savoir concilier le temps passé et la qualité de production : il faut un dossier suffisamment solide pour convaincre, sans investir trop de temps sur une opération qui pourrait ne pas aboutir.
- L’estimation budgétaire doit être juste dès l’APS : une plus-value importante entre APS et APD (avant-projet définitif) vous décrédibilise en tant que professionnel et fragilise la décision du client.
- Cedreo permet de concevoir un APS complet rapidement. Les fonctionnalités comme la visualisation immédiate en 3D, les modifications dynamiques, les exports prêts à imprimer ou le chiffrage en temps réel sécurisent l’intégralité de votre travail et accélèrent vos ventes.
Découvrez comment créer des projets complets avec Cedreo

Plans – obtenez les plans de masse, plans d’étage, plans électriques, plans de coupes et façades – avec tous les détails techniques pour une vue complète du projet.
Présentation – utilisez les rendus 3D intérieurs et extérieurs ainsi que les plans 3D dans vos documents APS / PC / DP pour présenter et vendre le projet.
Chiffrage – obtenez les déboursés, métrés et notices descriptives de vos projets – synchronisés avec le dessin.
Pourquoi l’avant-projet sommaire est-il à ce point décisif lors du processus de vente ?

L’avant-projet sommaire intervient au début d’un projet de construction : juste après la faisabilité (ou l’esquisse) et avant les études plus détaillées de l’avant-projet définitif (APD).
La mission de l’APS ? Valider les grandes lignes de la future construction ou rénovation, à la fois sur le plan technique, esthétique et budgétaire. Il permet de formaliser le programme, d’exposer les premières solutions techniques, d’identifier les contraintes du site et de poser les bases du futur permis de construire.
Si l’APS n’entre pas encore dans le niveau de précision exigé pour un dépôt de permis de construire, il n’est pas pour autant simpliste ou provisoire. L’idée est de préciser les choix au fur et à mesure de l’avancée dans les phases, pas de revenir en arrière plusieurs fois.
L’avant-projet est un véritable support de dialogue entre le maître d’ouvrage et les entreprises de construction ou de maîtrise d’œuvre. C’est un outil de projection pour le client, et par extension, un argument de vente à part entière.
Plus un APS est clair, détaillé et présenté de manière « vendeuse », plus il inspire confiance et donne envie au prospect de se lancer. Il devient une preuve de votre professionnalisme et grâce à lui le projet est pris au sérieux dès le début. À l’inverse, un dossier trop technique, incomplet ou difficile à lire ralentit la décision.
« Grâce aux rendus 3D Cedreo, les clients se projettent plus facilement, ça facilite le choix du projet. »
Quels sont les éléments à inclure dans un APS complet ?

Contrairement à ce que le terme « sommaire » pourrait laisser entendre, l’APS doit offrir une analyse globale d’un projet de construction. Il doit comporter un ensemble de données suffisamment précises et exploitables pour enclencher les étapes suivantes, jusqu’au chantier.
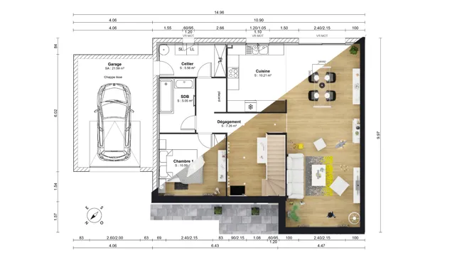
Des plans graphiques
- Un plan de masse : décrit l’implantation précise du bâtiment sur la parcelle, en précisant les accès, limites de propriété, l’orientation, les aménagements extérieurs.
- Des plans de niveaux : ils représentent les surfaces de chaque pièce, leurs dimensions principales et parfois l’aménagement intérieur. À ce stade, les plans techniques ne sont pas encore d’actualité (plans électriques, plans structurels, etc.).
- Des coupes et façades : elles sont indispensables pour analyser les hauteurs, appréhender les gabarits du bâtiment et l’impact sur le terrain naturel.
- Des visuels 3D : les perspectives intérieures et extérieures aident un client non initié à la lecture des plans 2D à comprendre le projet, à se projeter et par conséquent, à se décider.
Le descriptif sommaire
Ce document synthétise les matériaux envisagés, les performances visées (thermiques, acoustiques), les équipements à installer et les principes constructifs retenus. Il propose des solutions techniques cohérentes avec les attentes du client, sans entrer dans le détail de l’avant-projet définitif (APD).
Estimation budgétaire
Un budget prévisionnel par grands postes (gros œuvre, second œuvre, aménagements) accompagne les plans pour permettre au client de se positionner plus rapidement. Il sert de base à une discussion honnête sur les priorités du programme. Le maître d’ouvrage peut ainsi arbitrer ses choix en connaissant leur impact budgétaire.
Attention : cette première estimation doit être la plus réaliste possible ! Même s’il y a toujours des ajustements en phase APD, votre prospect attend une enveloppe cohérente dès les premiers stades de l’étude.
Une plus-value trop importante entre l’APS et l’APD nuit à votre crédibilité en tant que professionnel si par exemple : le projet n’a pas été suffisamment étudié ou que des contraintes n’ont pas été identifiées, etc. Cette différence de coût peut remettre en cause le projet lui-même, voire toute la relation commerciale.
Planning prévisionnel
Ce calendrier ou rétroplanning expose les grandes phases d’un projet de construction et leurs durées respectives : conception, démarches administratives, lancement du chantier, livraison.
C’est un outil précieux pour structurer le déroulé des opérations et faire comprendre à un maître d’ouvrage non initié pourquoi un chantier prend parfois du temps (délai d‘instruction d’un permis et délai de recours des tiers incompressibles, temps de séchage indispensables, etc.).
Les obstacles classiques de l’avant-projet sommaire

En interne, l’élaboration d’un avant-projet sommaire repose sur un équilibre délicat. Il faut y consacrer assez de temps pour concevoir un projet solide, cohérent, suffisamment détaillé pour convaincre le client et servir de base à la suite des études.
Mais il ne faut pas non plus y passer trop de temps, au risque de subir une perte sèche importante si le projet n’aboutit pas. C’est donc une phase où chaque minute investie doit être optimisée.
Voici les principaux obstacles rencontrés par les professionnels de la construction pendant une étude avant-projet :
- Un temps de conception trop long : chaque plan est redessiné à la main à partir de zéro, chaque modification demande une reprise complète, le processus de conception n’est ni cadré, ni optimisé.
- Des outils mal adaptés : entre les logiciels de dessin trop généralistes et les outils trop complexes, les ajustements de plans sont parfois complexes à gérer.
- Une mauvaise communication : par méconnaissance ou peur de se tromper, un client qui a du mal à lire un plan 2D revient souvent sur ses choix de conception et demande de multiples révisions.
- Une externalisation coûteuse : déléguer la phase APS à un architecte ou un prestataire tiers pour gagner du temps peut coûter cher, entre 1 500 et 5 000 € HT en fonction de la nature des travaux. Un investissement que vous n’êtes pas certain de rentabiliser si le projet est abandonné prématurément.
« Avant, un changement dans la façade, c’était 2 heures de travail. Maintenant avec Cedreo, on le fait en 10 minutes. »
Quelques bonnes pratiques pour optimiser son processus de vente grâce à l’APS

Pour déclencher plus de ventes, il faut à la fois gagner en qualité de production et en temps de réalisation. Voici quelques pistes pour y parvenir :
Adapter son approche à la typologie de client
Une première erreur souvent observée est de proposer le même dossier à tous les maîtres d’ouvrage. Or, chaque type de profil présente souvent des préoccupations différentes auxquelles vous pouvez répondre de manière personnalisée. Par exemple :
- pour un primo-accédant, misez sur des rendus chaleureux et très pédagogiques ;
- pour un investisseur, privilégiez la rationalisation des coûts, le calendrier projet, les rendements, les alternatives techniques ;
- pour un projet de rénovation, valorisez l’évolution avant/après avec des vues 3D réalistes et vendeuses.
Scénariser la présentation

Racontez une histoire autour de votre proposition. Commencez par rappeler le programme, enchaînez avec les solutions proposées, puis exposez les plans, le budget, le planning.
Sans entrer dans un exposé complexe, il est très important pour un maître d’ouvrage (prospect) de comprendre vos choix de conception et vos arbitrages techniques. Pourquoi avoir prévu un décroché à cet endroit ? Pourquoi l’escalier a-t-il été placé contre ce mur ? Anticipez toutes ces questions lors de vos rendez-vous qui n’en seront que plus productifs.
Maîtriser les modifications de projet
Un client change d’avis sur la toiture ? Une surface doit être réduite ? Une pièce est remplacée par une autre ? Ce sont des demandes très fréquentes en phase d’avant-projet !
Vous devez donc impérativement trouver des solutions ou des outils pour gérer ces adaptations le plus rapidement possible sans faire d’erreur. L’objectif ? Être à la fois réactif auprès du client et rentable en interne.
« L’objectif, c’était vraiment de gagner en temps de réponse. Grâce à Cedreo, on arrive à faire des plans dans la journée. »
Simplifiez la création d’un APS avec le logiciel Cedreo
Cedreo est un logiciel en ligne conçu pour répondre aux problématiques quotidiennes des professionnels du bâtiment. Les différentes fonctionnalités vous aident à produire rapidement et simplement des rendus de qualité. Découvrez concrètement comment Cedreo vous fait gagner du temps chaque jour.
Une interface 2D/3D intuitive et temps réel

Avec Cedreo, vous dessinez les plans 2D d’un bâtiment et visualisez simultanément le rendu 3D en temps réel. Pas besoin de modéliser deux fois : la visualisation est immédiate. Les murs, ouvertures, volumes et niveaux sont automatiquement synchronisés pour choisir en direct l’architecture du projet.
Une fois votre bâtiment modélisé, les façades et coupes sont générées en quelques clics et les surfaces réglementaires sont calculées automatiquement.
Modifications automatiques et cohérentes
Grâce à la mise à jour dynamique des documents, chaque modification (dimension, revêtement, cloison) est immédiatement répercutée sur tous les plans et visuels associés. Plus besoin de ressaisir toutes vos façades lorsqu’une fenêtre est agrandie, ou de recalculer toutes les superficies des pièces quand une cloison est décalée.
Insertion de visuels réalistes

Cedreo propose de générer des rendus 3D réalistes et personnalisables :
- ajout de végétation, éclairage de jour ou de nuit, textures ;
- arrière-plan personnalisé via l’intégration d’une photo du site réel ;
- mise en scène de l’intérieur selon les goûts décoratifs du client (bibliothèque de mobilier, teintes, revêtements).
Chiffrage pendant le dessin
Le module de chiffrage intégré au logiciel vous permet d’associer des bibliothèques d’articles à chaque élément modélisé (descriptif et prix unitaire). Ainsi, vous pouvez générer une estimation budgétaire préliminaire en temps réel, pendant le tracé de l’APS.
Export PDF et documents de présentation personnalisables

L’ensemble du dossier APS est exportable en PDF, avec vos propres gabarits de présentation, vos logos, vos titres de pièces et un format prêt à imprimer. Idéal pour envoyer un document soigné à un prospect ou le joindre à vos dossiers de permis de construire.
Dans un contexte où chaque heure est comptabilisée et face à une concurrence rude, Cedreo vous permet de créer des avant-projets sommaires de qualité en un temps record. Grâce à cet avantage concurrentiel, l’APS de vos prochains projets ne sera plus une étape redoutée, mais un véritable outil commercial et un support de travail fiable pour tous les acteurs du projet.
FAQ
L’APS intervient après une esquisse ou étude de faisabilité, et avant l’avant-projet définitif (APD). Il propose une première composition technique, esthétique et budgétaire du futur bâtiment. Sa principale mission est de valider la cohérence globale des volumes avant d’engager des démarches plus poussées comme le dépôt de permis de construire.
L’APS (avant-projet sommaire) donne une vision d’ensemble cohérente et structurée du projet, mais sans entrer dans le détail des solutions techniques. L’APD (avant-projet définitif) affine et précise les choix de conception dans le but de produire les éléments pour la demande de permis comme le choix des matériaux, la validation des volumes, etc.
Pas formellement, mais un APS bien réalisé facilite la décision et potentiellement la vente. Il permet au client de se projeter, de valider un budget prévisionnel et de bien comprendre les étapes à venir. C’est souvent à cette étape qu’un prospect choisit de devenir ou non votre client.
Pour être rentable, un APS doit être abordé avec méthode. Élaborez un processus de travail cadré, choisissez des outils adaptés à vos problématiques et prenez le temps de mettre en place des gabarits de présentation personnalisés pour gagner du temps. Ainsi, vous ne vous demandez plus quelle est la prochaine étape à suivre, tout est défini à l’avance.