Un client qui vous appelle à la dernière minute pour ajouter des prises ? Des cloisons déjà montées, mais un interrupteur mal placé ? Une entreprise qui lit votre plan sans vraiment le comprendre et qui commet des erreurs sur le chantier ?
Si ces situations vous parlent, sachez qu’elles ont bien souvent une cause commune : un plan électrique mal anticipé, mal présenté ou tout simplement mal compris.
Pour les éviter, des outils simples à prendre en main peuvent vous aider à réaliser des schémas électriques en ligne clairs et immédiatement compris par tous.
Dans la suite, découvrez comment créer rapidement des plans électriques professionnels en 5 étapes. Vous trouverez aussi des astuces concrètes pour améliorer la lisibilité de vos documents, gagner du temps et éviter les erreurs grâce aux fonctionnalités du logiciel de plans de maisons en ligne Cedreo.
Points clés à retenir
- Le recueil précis des besoins client: interrogez sur les habitudes et usages quotidiens des clients pour identifier les besoins spécifiques en termes d’équipements électriques et éviter les modifications tardives pendant le chantier.
- Le respect rigoureux des normes: le schéma électrique doit respecter la norme NFC 15-100 en proposant une base conforme (nombre minimal de prises par pièce, circuits spécialisés, volumes de sécurité) à adapter sans jamais descendre sous les minimums requis.
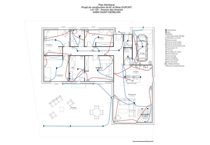
- L’utilisation d’un logiciel pour créer les plans électriques: un outil comme Cedreo permet de dessiner les plans de niveaux en 2D, d’ajouter les équipements électriques depuis une bibliothèque de symboles.
- La clarté et la lisibilité du schéma électrique: faire un plan électrique compréhensible en limitant le nombre de symboles, en utilisant un code couleur clair pour différencier les circuits pour garantir une bonne compréhension par le client et les artisans.
Pourquoi utiliser un logiciel pour schéma électrique en ligne ?

Pourquoi produire son schéma électrique en ligne ? Tout simplement parce qu’il existe aujourd’hui des outils performants qui, contrairement aux techniques de dessin traditionnelles, vous font gagner un temps fou ! Avec un logiciel de schéma électrique accessible depuis un navigateur, vous bénéficiez :
- d’une interface plus intuitive, plus claire, adaptée votre activité ;
- d’une bibliothèque de symboles prêts à l’emploi ;
- d’une visualisation directe des équipements électrique dans leur contexte ;
- de plans facilement partageables par e-mail et compréhensibles par toutes les parties prenantes ;
- d’un espace de travail centralisé qui simplifie la collaboration entre tous les membres de votre équipe.
Comment faire un plan d’électricité professionnel en 5 étapes simples ?
Étape 1 : recueillir les besoins du client pour faire un plan électrique pertinent
L’électricité est souvent abordée trop tardivement dans le processus de conception. On pense aux volumes, à la superficie des pièces, et même parfois à la déco avant de réfléchir aux besoins électriques. Mais c’est une erreur de les considérer comme la « touche finale » à un projet déjà figé.
Pour éviter de découvrir au moment de la réunion MAP que votre client souhaite finalement des prises USB un peu partout dans la maison, posez-lui des questions ciblées dès les premiers échanges. Invitez-le à se projeter dans ses futurs usages et sur ses habitudes concrètes :
- Que lui manque-t-il au quotidien dans son logement actuel ?
- Où recharge-t-il son téléphone et son ordinateur ?
- Comment cuisine-t-il ? D’ailleurs, a-t-il déjà rencontré un cuisiniste ou des idées d’aménagement ?
- Travaille-t-il depuis son domicile ?
- A-t-il des hobbies qui impliquent des branchements spécifiques (bricolage, atelier créatif, jeux vidéo) ?
- A-t-il des contraintes de confort, d’accessibilité ou de sécurité (accueil d’enfants en bas âge à domicile par exemple) ?
Ce moment de dialogue peut faire émerger des besoins implicites :
- une prise haute dans la buanderie
- un éclairage indirect dans le salon
- un circuit domotique pour les volets roulants
- des prises supplémentaires dans la chambre pour y ajouter un bureau
Un plan électrique pertinent commence toujours par une discussion avec vos clients. Documentez ses réponses pièce par pièce dans un tableau type. Vous pourrez ensuite traduire ses besoins directement dans le schéma électrique (et dans votre chiffrage !).
Étape 2 : vérifier la conformité du schéma aux normes électriques (NFC 15-100)
Une fois les besoins recensés, validez la conformité du projet avec la norme NFC 15-100. Elle définit les règles à respecter dans les logements pour leur garantir à la fois un confort optimal et la sécurité des installations.
Exemples : pour une cuisine, la norme impose au moins six prises, et des prises supplémentaires sur circuits spécialisés dédiés aux gros appareils (cuisson, lave-vaisselle). Dans une salle de bains, les volumes de sécurité à proximité des points d’eau déterminent où il est autorisé (et interdit) d’installer prises et luminaires.

Dans le cas d’une construction neuve ou d’une extension, le respect de la norme est indispensable pour obtenir le Consuel à la fin des travaux, et l’autorisation de mettre le nouveau bâtiment sous tension.
Pour éviter toute erreur, commencez toujours par proposer une base de plan électrique conforme dès la première version (six prises dans la cuisine, trois dans une chambre, circuits séparés pour les gros électroménagers, etc.). N’ajustez qu’ensuite avec le client, en respectant la règle suivante : vous pouvez ajouter ou déplacer des équipements à l’intérieur de chaque pièce, mais jamais en supprimer. C’est la meilleure façon de respecter la norme en vigueur et le programme du client.
Étape 3 : choisir un logiciel de plan électrique en ligne adapté à votre activité
Vous respectez la réglementation, vos plans de niveaux sont validés : il ne reste « qu’à » passer à la création du plan d’électricité. Et pour cela, il faut disposer du bon outil !
Dans la pratique, de nombreux professionnels travaillent avec des logiciels de dessin généralistes. S’ils permettent de construire des plans précis, ils ne possèdent souvent pas de fonctionnalités dédiées aux schémas techniques. Il faut alors « bricoler » avec les fonctionnalités disponibles : créer soi-même des symboles, se constituer une bibliothèque d’éléments récurrents…

D’autres logiciels pensés pour les bureaux d’études techniques ou les ingénieurs réseaux sont au contraire trop complexes, et pas vraiment adaptés à des professionnels comme les constructeurs de maisons individuelles ou les maîtres d’œuvre. Il faut alors jongler entre plusieurs logiciels : l’un pour les plans architecturaux, l’autre pour les réseaux, avec tous les risques de décalage ou d’incohérences que cela implique.

Alors, comment faire un schéma électrique en ligne plus simplement ? Cedreo, logiciel 100% en ligne, vous permet de créer vos projets complets :
- dessiner vos plans de niveaux en 2D ;
- ajouter vos équipements électriques depuis une bibliothèque de symboles en toute simplicité, directement dans chaque pièce ;
- visualiser instantanément le rendu de votre aménagement en 3D et identifier immédiatement les incohérences d’implantation ;
- travailler tous les aspects du bâtiment dans un seul et même environnement, sans avoir à exporter, convertir ou ressaisir des données ;
- accéder à vos réalisations depuis n’importe où, collaborer avec votre équipe et faire valider les plans à distance.
Étape 4 : choisir et placer les symboles électriques sur le plan

Électricité, chauffage, ventilation : dans le logiciel Cedreo, vous disposez d’une bibliothèque contenant les principaux types de symboles électriques à insérer directement sur vos plans. Prises de courant, interrupteurs, appliques murales, luminaires au plafond, prises spécialisées, tout est déjà configuré et prêt à l’emploi ! Vous pouvez également représenter le dessin du circuit électrique (câblages, éclairage) grâce aux lignes courbes.
Gagnez en efficacité en enregistrant les symboles que vous utilisez le plus souvent en favoris. Vous éviterez de parcourir toute la bibliothèque à chaque nouvelle opération, d’autant plus si vous travaillez régulièrement sur le même type de bâtiments.
Autre avantage : en fonction de votre charte graphique, de vos habitudes de travail ou de l’échelle de votre plan, tous les symboles peuvent être personnalisés. Taille, couleur, style : adaptez l’apparence de vos schémas électriques pour qu’ils s’harmonisent avec vos autres documents.
Notre conseil : la phase d’implantation demande une réelle réflexion sur la fluidité d’usage et les flux de circulation. Servez-vous de la représentation en 3D pour identifier les éventuelles erreurs de positionnement grâce au mobilier en place.
Étape 5 : rendre son plan électrique lisible pour une validation client simplifiée

Un schéma électrique n’a de réel intérêt que s’il est compris et utilisé comme support de décision par vos clients.
Souvent, les schémas électriques transmis sont trop techniques, trop denses, voire illisibles pour un œil non initié. Conséquences : le client ne saisit pas tout, ne se projette pas du tout et ne valide pas (ou valide sans réellement comprendre, puis demande des modifications tardives).
Voici quelques bonnes pratiques à adopter pour des plans électriques compris au premier coup d’œil :
- Limitez le nombre de symboles différents : plus le dessin du circuit électrique est épuré, plus il est facile à lire. C’est également valable pour les artisans sur le chantier qui ont besoin de comprendre rapidement ce qu’ils doivent faire.

- Utilisez un code couleur clair : différenciez les circuits (éclairage, prises, appareils spécifiques…) avec des couleurs distinctes.

- Ajoutez les références de la gamme d’appareillage choisie dans la légende. Cela évite les malentendus en phase chantier.

- Si elles ne sont pas standards, pensez à indiquer les hauteurs de pose avec des annotations visibles.

Un document bien présenté est une preuve de professionnalisme qui rassure vos clients. Pour vous, c’est un moyen de verrouiller les choix de façon sûre, d’éviter les retours tardifs et de démarrer vos chantiers dans de bonnes conditions.