3D Rendering bietet eine lange Liste von Vorteilen für Innenarchitekten, Bauherren und die Renovierung.
Renderings helfen Kunden dabei, sich vorzustellen, wie das Endprodukt aussehen wird, verschiedene Optionen zu bewerten und Entscheidungen zu treffen, die sie nicht bereuen werden. Sie sind ein leistungsfähiges Instrument zur Gewinnung von Kundenkontakten und ermöglichen es Designern, ihre Arbeit in sozialen Medien, in visuell überzeugenden Werbekampagnen und auf ihrer Website zu präsentieren.
Als Werkzeug für Ihre Präsentationen schaffen 3D-Renderings eine emotionale Bindung, die zum Abschluss von Geschäften beiträgt. Und sie helfen Kunden und Innenarchitekten dabei, gemeinsam an einer einheitlichen Vision zu arbeiten, um sicherzustellen, dass alle Parteien mit dem Endergebnis zufrieden sind.
In diesem Blogbeitrag stellen wir Ihnen die wichtigsten Vorteile von 3D-Renderings vor, zeigen Ihnen einige Rendering-Beispiele und führen Sie durch die Schritte zur Erstellung eines Renderings mit Cedreo.
Was ist ein Rendering?
Unter 3D-Rendering versteht man die Verwendung von 3D-Rendering-Software zur Erstellung fotorealistischer Bilder von architektonischen Konzepten, Innenräumen und Landschaftsgestaltung. Renderings helfen Innenarchitekten, Handwerkern und Bauherren, Designkonzepte zu erklären, mit Kunden zusammenzuarbeiten, ihre Dienstleistungen zu vermarkten und Geschäfte schneller abzuschließen.
In der Vergangenheit haben Bauherren und Designer 3D-Renderings ausgelagert, und ein Designer hat sie auf der Grundlage von 2D-Bauplänen erstellt. Heute haben Fachleute in der Baubranche Zugang zu erschwinglicher 3D-Rendering-Software, die diesen Prozess ins Haus holt und es ihnen ermöglicht, Entwürfe mit nur wenigen Klicks zu erstellen, zu aktualisieren und anzupassen.

Warum ist 3D-Rendering wichtig für Bauherren, Innenarchitekten und die Renovierung?
3D-Rendering ist wichtig, weil es Projekte zum Leben erweckt, komplexe Konzepte in der Realität verankert und Kunden hilft, sich das fertige Projekt vorzustellen. Es vermittelt eine kreative Vision auf eine Art und Weise, wie es 2D-Grundrisse und Datenblätter allein nicht können.
Obwohl die Vorteile von 3D-Renderings auf die starke Wirkung von Bildern auf das menschliche Gehirn zurückzuführen sind, sind ihre Auswirkungen weitreichend.
Hier sind nur einige der vielen Möglichkeiten, wie Renderings Kunden und Wohnbau Profis gleichermaßen helfen:
Feedback in Echtzeit erhalten
3D-Rendering bietet sowohl den Bauherren als auch ihren Kunden ein besseres Feedback.
In vielen Fällen kann der Fachmann auch sehen, wie die 3D-Visualisierung aussehen wird, während er den Entwurf in 2D zeichnet. Mit Cedreo zum Beispiel können Benutzer eine 3D-Ansicht erhalten, während sie in 2D zeichnen.
Auf der Kundenseite können die Benutzer den laufenden 3D-Entwurf prüfen und Feedback dazu geben, was sie gerne hinzufügen, ändern oder entfernen würden. Profis können an Ort und Stelle Aktualisierungen vornehmen, die Genehmigung des Kunden und der Interessengruppen einholen und zur nächsten Projektphase übergehen.
Sie können 3D-Renderings auch als Hilfsmittel für die Zusammenarbeit bei Kunden Besprechungen verwenden. Kunden können darum bitten, verschiedene Baumaterialien, Einrichtungsgegenstände, Wohndekorationen und Fenster Platzierungen auszuwählen. Anschließend können Anpassungen vorgenommen werden, um sicherzustellen, dass der Entwurf den Erwartungen des Kunden entspricht.
Schaffen Sie einen Wettbewerbsvorteil
Die Umwandlung eines 2D-Grundrisses in ein fotorealistisches 3D Rendering verschafft Planungsprofis in vielerlei Hinsicht einen Wettbewerbsvorteil. Es hilft ihnen, die Aufmerksamkeit potenzieller Kunden zu gewinnen, erleichtert die Erläuterung des Bauprozesses und ermöglicht es den Kunden, das Endergebnis zu visualisieren, was eine schnelle, fundierte Entscheidungsfindung unterstützt.
Mehr Geschäfte abschließen
Auch wenn sie gerne glauben, dass ihre Entscheidungen auf Logik beruhen, ist es in Wirklichkeit so, dass Menschen aufgrund von Emotionen kaufen. Aus diesem Grund ist das 3D-Rendering ein wirkungsvolles Instrument, um mehr Geschäfte abzuschließen.
Je mehr Sie jemandem helfen können, sich sein Traumprodukt vorzustellen, desto wahrscheinlicher ist es, dass er kauft. Das wiederum führt zu kürzeren Verkaufszyklen und höheren Abschlussquoten.
Häufige Anwendungsfälle für 3D-Rendering
3D-Renderings können auf vielfältige Weise eingesetzt werden, um Designern, Bauunternehmern und Bauherren zu zeigen, wie ihr neues oder Renovierungsprojekt nach der Fertigstellung aussehen wird.
Im Folgenden finden Sie einige Beispiele für den Einsatz von 3D-Rendering-Software bei der Arbeit von Designern:
Architektonische Renderings

Die 3D-Rendering-Software von Cedreo ermöglicht es Bauherren, Innenarchitekten und Bauunternehmern, Geld zu sparen, indem sie den konzeptionellen Entwurfsprozess ins Haus holen.
Die Benutzer können innerhalb weniger Minuten fotorealistische 3D-Renderings des Hauses und der Umgebung erstellen, und das mit minimalen 3D-Design-Kenntnissen.
Wie im obigen Beispiel zu sehen ist, können die Benutzer die Außenverkleidungen und -merkmale leicht ändern – Abstellgleis, Ziegelsteine, Landschaftsgestaltung, Einfriedung und vieles mehr.
Renderings für die Innenarchitektur

Mit 3D Rendering Software können Benutzer auch HD-Renderings der Inneneinrichtung erstellen, komplett mit Baumaterialien und Möbeln. Auf diese Weise können Sie Projekte für jeden Kunden individuell gestalten und gemeinsam an Raumdesigns arbeiten, die den individuellen Vorlieben und Spezifikationen des Kunden entsprechen.
Wenn Sie sich zum Beispiel die oben abgebildete Küche ansehen, könnte ein Designer dem Kunden diese Idee vorstellen und ihm dann zeigen, wie sie mit einem anderen Essgeschirr, einem helleren Anstrich oder einem Fliesenboden aussehen könnte.
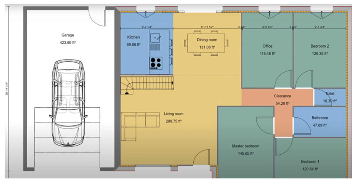
Grundriss Renderings
Rendering-Software wird auch zur Erstellung von 3D-Grundrissen verwendet, die Kunden und anderen Beteiligten helfen, das Layout des vorgeschlagenen Entwurfs zu visualisieren.
Wohnbauprofis können Grundrisse in 2D mit einer Drag-and-Drop-Funktion erstellen und dann den flachen Grundriss in 3D konvertieren. Dies erleichtert die Präsentation von Ideen, da die Kunden schnell erkennen können, wie die verschiedenen Räume ineinander übergehen und wie Möbel, Fenster, Treppen, Türen und Geräte in das Gesamtbild passen.
Renderings für Landschaftsgestaltung

Sie können auch 3D-Rendering-Software für die Landschaftsgestaltung verwenden. Cedreo-Benutzer können Vorgärten und Hinterhöfe mit Gärten, Pools, Terrassen, Gelände und Zäunen gestalten – sogar Grillplätze und Außenmöbel. Sie können Ihre Entwürfe speichern und Details für neue Kunden ändern.
So können Sie beispielsweise das obige Design mit einem Kunden teilen, der Motorrad fährt und einen trockenheitsresistenten Garten einem traditionellen Rasen vorzieht, und es dann für den nächsten Kunden ändern, der Hochbeete oder ein paar Obstbäume sehen möchte. Der Punkt ist, dass Cedreo-Benutzer die Landschaft leicht anpassen und die persönlichen Details einbeziehen können, die den einzelnen Kunden auf einer emotionalen Ebene ansprechen.
9 einfache Schritte zur Erstellung eines 3D-Renderings
Auch wenn jedes Programm anders ist, besteht die Erstellung eines 3D-Renderings in der Regel aus den gleichen allgemeinen Schritten. Im Folgenden haben wir den Prozess der Erstellung von 3D-Renderings in Cedreo auf der Grundlage der in der Plattform enthaltenen Funktionen skizziert.
1. Grundriss zeichnen oder importieren
Als Erstes müssen Sie entweder einen vorhandenen Grundriss importieren oder einen Grundriss von Grund auf neu zeichnen.
Wenn Sie bei Null anfangen, sollten Sie zunächst eine grobe Skizze des geplanten Designs erstellen. In der Regel beginnen Sie mit einer Grundform – einem Rechteck oder einem Quadrat – und unterteilen es in verschiedene Räume.

Von dort aus können Sie die Platzierung der Wände, den Maßstab und die Raumabmessungen an die Bedürfnisse des Kunden anpassen. Darüber hinaus können Sie die in Cedreo integrierte Bibliothek mit Grundriss Symbolen nutzen, um Möbel, Geräte, Fenster, Türen und vieles mehr hinzuzufügen und so einen vollständigeren Entwurf zu erstellen.
2. Dach hinzufügen
Im Grundrissplaner finden Sie auch die verschiedenen Elemente, die Sie für die Gestaltung eines Daches benötigen.
Wählen Sie einfach den Dachtyp (z. B. Satteldach, Pultdach, Walmdach) und die Materialien aus und fügen Sie sie in den Grundriss ein.
Sie können zwischen manueller und automatischer Erkennung wählen – das heißt, Sie können entweder Punkt für Punkt über den Grundriss fahren, um individuelle Dächer zu erstellen:

Wenn Sie nur eine Dachform haben, können Sie auch die automatische Erkennung wählen, und die Software fügt das Dach automatisch ein.

Von dort aus können Sie den Winkel, die Neigung, die Höhe und vieles mehr mit wenigen Klicks einstellen.
3. Anpassen der Außenverkleidungen des Hauses
Als Nächstes sollten Sie die Außenverkleidungen Ihres Hauses wie Abstellgleis, Ziegel und Verkleidung anpassen.
Wählen Sie in der oberen Navigationsleiste „Verkleidung“ und wählen Sie dann aus der Liste der Optionen im Menü auf der linken Seite des Bildschirms.
4. Atmosphäre des Innenraums auswählen
Nachdem Sie den Außenbereich fertiggestellt haben, sollten Sie sich für eine gemütliche Atmosphäre entscheiden.
Cedreo bietet vorgefertigte Atmosphären – Skandinavisch, Luxus modern, etc. – um Ihnen zu helfen, die Stimmung eines bestimmten Projekts zu definieren.
5. Einrichten und dekorieren
Als Nächstes sollten Sie auf die 3D-Bibliothek von Cedreo zugreifen, in der Sie über 7.000 Möbelstücke, Texturen, Dekorationen und Materialien finden.
Rationalisieren Sie den Prozess, indem Sie koordinierte Kollektionen von Accessoires oder Möbeln auswählen, oder wählen Sie die Stücke einzeln aus.

6. Gartengestaltung
Wenn Sie mit der Inneneinrichtung fertig sind, ist es an der Zeit, dem Außenbereich den letzten Schliff zu geben. In diesem Fall handelt es sich um dekorative Elemente wie Pflanzen, Zäune, Pools und Terrassen.
Die Außenelemente finden Sie auch im Cedreo-Katalog, nur dass Sie im Menü „Außenbereich“ und nicht „Küche“ oder „Schlafzimmer“ auswählen, um zu den einzelnen Kollektionen zu gelangen. Sie haben auch die Möglichkeit, Elemente aus den Kategorien Vegetation, Sport/Hobby und Garten/Terrasse auszuwählen.
7. Umgebungseinstellungen konfigurieren
Der nächste Schritt ist die Konfiguration Ihrer Rendering-Umgebung, bei der es um die Beleuchtung und die Sonnenausrichtung geht und darum, wie sie sich auf die Innen- und Außengestaltung auswirken. Sie können zwischen einer automatischen Sonnenausrichtung wählen oder diese manuell auf eine bestimmte Jahreszeit und Tageszeit einstellen.
Wählen Sie in der oberen Navigationsleiste „HD Rendering“ und dann „Rendering“. Dort können Sie einen Hintergrund, die Sonnenausrichtung und die Außenbeleuchtung auswählen.
8. Blickwinkel festlegen
Als Nächstes sollten Sie den Blickwinkel festlegen und speichern. So können Sie Entwürfe aus verschiedenen Perspektiven erstellen, ohne die Kamera für jedes neue 3D-Rendering neu positionieren zu müssen.
Wie Sie unten sehen, können Sie jeden Entwurf von vorne und hinten, zu verschiedenen Tageszeiten oder in bestimmten Räumen betrachten.
9. HD-Visualisierung generieren
Zum Schluss erstellen Sie eine HD-3D-Visualisierung, um Ihre Arbeit zu speichern – eine fotorealistische Interpretation des Entwurfs, die für den Verkauf des Projekts verwendet wird.
Wenn Sie mit Ihrem Entwurf zufrieden sind, wählen Sie einfach „HD Rendering“ in der oberen Navigationsleiste und klicken dann auf „Rendering erzeugen“.
Innerhalb weniger Minuten wird Ihre 3D-Visualisierung zur Galerie hinzugefügt, wo sie dann heruntergeladen und weitergegeben werden kann.
Häufig gestellte Fragen
Wie lange dauert es, ein 3D-Rendering zu erstellen?
Wenn Sie eine 3D-Rendering-Software verwenden, sollte es nur ein paar Stunden dauern, einen Entwurf zu erstellen. Allerdings hängt es auch davon ab, ob Sie von einem vorhandenen Grundriss ausgehen oder ganz neu anfangen.
Wer verwendet 3D-Rendering?
3D-Rendering-Software wird von Innenarchitekten, Bauunternehmern, Architekten, Handwerkern und Immobilienmaklern verwendet. Fachleute nutzen 3D-Visualisierungen als Verkaufs- und Marketinginstrument, als erschwingliche konzeptionelle Designlösung und zur Zusammenarbeit mit Kunden und Kollegen bei Projekten.
Nutzen Sie die Vorteile von 3D-Renderings
Mit der 3D-Rendering-Software von Cedreo können Innenarchitekten, Bauunternehmer, Renovierer und andere Fachleute aus dem Wohnungsbau fotorealistische Renderings erstellen, mit denen sich Konzepte sofort vermitteln und Geschäfte abschließen lassen. Mit diesem benutzerfreundlichen Tool können Sie Ihren Kunden Ideen vermitteln, Entwürfe bis ins kleinste Detail anpassen und Geschäfte schneller abschließen.
Melden Sie sich für ein kostenloses Konto an, um loszulegen.